**Attraktive 4,5-Zimmer-Wohnung in Herbolzheim – Ihr neues Zuhause oder eine lukrative Kapitalanlage!**
Wir präsentieren Ihnen eine charmante 4,5-Zimmer-Wohnung in einem gepflegten Mehrfamilienhaus in Herbolzheim. Diese Wohnung ist derzeit vermietet...
mehr lesen
**Attraktive 4,5-Zimmer-Wohnung in Herbolzheim – Ihr neues Zuhause oder eine lukrative Kapitalanlage!**
Wir präsentieren Ihnen eine charmante 4,5-Zimmer-Wohnung in einem gepflegten Mehrfamilienhaus in Herbolzheim. Diese Wohnung ist derzeit vermietet und überzeugt durch ihren sehr guten Zustand. Sie ist damit eine ideale Möglichkeit für Investoren oder für Käufer, die sich eine zukünftige Selbstnutzung wünschen.
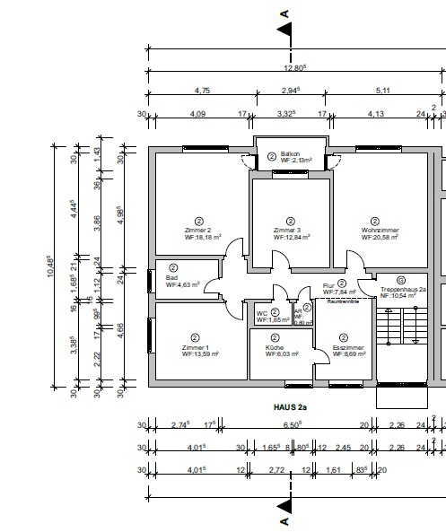
Die Wohnung befindet sich im ersten Obergeschoss und bietet Ihnen eine durchdachte Raumaufteilung. Die lichtdurchfluteten Räume schaffen eine einladende Atmosphäre und bieten Ihnen viele Gestaltungsmöglichkeiten.
Der Balkon auf der Rückseite des Hauses. Im Haus fanden/finden noch Sanierungen statt. Diese sind im Einzelnen:
Fassadendämmung (WDVS 160mm) + neuer Putz + neue Fensterbänke Verlängerung des Dachvorsprungs (beidseitig) Balkonsanierung Dachdämmung durch DG Ausbau Dachreinigung und neue Dachbeschichtung Erneuerung der Fallrohre (Regenrinnen) Erneuerung des Elektrozählerkastens (Hauselektrik) Einbau einer neuen Pelletheizung Erneuerung der Hauseingangstüren Renovierung der Treppenhäuser Garagen frisch gestrichen + Erneuerung der Garagendächer
Das Badezimmer wurde kürzlich renoviert und überzeugt durch moderne Ausstattung und eine ansprechende Gestaltung. Zudem wurden alle Fenster erneuert, wodurch nicht nur der Schallschutz, sondern auch die Energieeffizienz der Wohnung deutlich erhöht wurden. Das gesamte Gebäude wurde zudem isoliert, was Ihren Wohnkomfort zusätzlich steigert und die Nebenkosten reduziert.
Zur Wohnung gehört eine eigene Garage, die Ihnen nicht nur Schutz vor Witterungseinflüssen bietet, sondern auch zusätzlichen Stauraum für Fahrräder oder andere Utensilien. Des Weiteren profitieren Sie von einem eigenen Kellerraum im Untergeschoss des Hauses, der Ihnen weiteren Platz für Ihre persönlichen Gegenstände bietet.
Im Erdgeschoss (Hochparterre) befindet sich eine identische Wohnung, diese wird ebenfalls zu den gleichen Konditionen verkauft. Diese ist ebenfalls vermietet.
Die Lage in Herbolzheim zeichnet sich durch eine gute Anbindung an die Infrastruktur aus. Einkaufsmöglichkeiten, Schulen und öffentliche Verkehrsmittel sind in unmittelbarer Nähe und tragen zur hohen Lebensqualität bei.
Nutzen Sie die Chance, Eigentum in dieser begehrten Lage zu erwerben. Ob als Kapitalanlage oder für den Eigenbedarf – diese Wohnung ist eine hervorragende Wahl!
Vereinbaren Sie noch heute einen Besichtigungstermin und überzeugen Sie sich selbst von den Vorzügen dieser ansprechenden Immobilie!
**Attraktive 4,5-Zimmer-Wohnung in Herbolzheim – Ihr neues Zuhause oder eine lukrative Kapitalanlage!**
Wir präsentieren Ihnen eine charmante 4,5-Zimmer-Wohnung in einem gepflegten Mehrfamilienhaus in Herbolzheim. Diese Wohnung ist derzeit vermietet und überzeugt durch ihren sehr guten Zustand. Sie ist damit eine ideale Möglichkeit für Investoren oder für Käufer, die sich eine zukünftige Selbstnutzung wünschen.
Die Wohnung befindet sich im ersten Obergeschoss und bietet Ihnen eine durchdachte Raumaufteilung. Die lichtdurchfluteten Räume schaffen eine einladende Atmosphäre und bieten Ihnen viele Gestaltungsmöglichkeiten.
Der Balkon auf der Rückseite des Hauses. Im Haus fanden/finden noch Sanierungen statt. Diese sind im Einzelnen:
Fassadendämmung (WDVS 160mm) + neuer Putz + neue Fensterbänke Verlängerung des Dachvorsprungs (beidseitig) Balkonsanierung Dachdämmung durch DG Ausbau Dachreinigung und neue Dachbeschichtung Erneuerung der Fallrohre (Regenrinnen) Erneuerung des Elektrozählerkastens (Hauselektrik) Einbau einer neuen Pelletheizung Erneuerung der Hauseingangstüren Renovierung der Treppenhäuser Garagen frisch gestrichen + Erneuerung der Garagendächer
Das Badezimmer wurde kürzlich renoviert und überzeugt durch moderne Ausstattung und eine ansprechende Gestaltung. Zudem wurden alle Fenster erneuert, wodurch nicht nur der Schallschutz, sondern auch die Energieeffizienz der Wohnung deutlich erhöht wurden. Das gesamte Gebäude wurde zudem isoliert, was Ihren Wohnkomfort zusätzlich steigert und die Nebenkosten reduziert.
Zur Wohnung gehört eine eigene Garage, die Ihnen nicht nur Schutz vor Witterungseinflüssen bietet, sondern auch zusätzlichen Stauraum für Fahrräder oder andere Utensilien. Des Weiteren profitieren Sie von einem eigenen Kellerraum im Untergeschoss des Hauses, der Ihnen weiteren Platz für Ihre persönlichen Gegenstände bietet.
Im Erdgeschoss (Hochparterre) befindet sich eine identische Wohnung, diese wird ebenfalls zu den gleichen Konditionen verkauft. Diese ist ebenfalls vermietet.
Die Lage in Herbolzheim zeichnet sich durch eine gute Anbindung an die Infrastruktur aus. Einkaufsmöglichkeiten, Schulen und öffentliche Verkehrsmittel sind in unmittelbarer Nähe und tragen zur hohen Lebensqualität bei.
Nutzen Sie die Chance, Eigentum in dieser begehrten Lage zu erwerben. Ob als Kapitalanlage oder für den Eigenbedarf – diese Wohnung ist eine hervorragende Wahl!
Vereinbaren Sie noch heute einen Besichtigungstermin und überzeugen Sie sich selbst von den Vorzügen dieser ansprechenden Immobilie!
Kosten
Kaufpreis
249.000 €
Käuferprovision
Keine besondere Angabe.
Immobiliendetails
Nutzungsart
Wohnen
Objektart
Apartment
Hauptobjektart
Wohnung
Vertragsart
Kauf
Objektzustand
Gepflegt
Baujahr
1972
Zimmer
4,5
Anzahl Schlafzimmer
2
Anzahl Badezimmer
1
Balkon
1
Wohnfläche (ca.)
97 m²
Etage
1
Garage/Stellplatz
Garage
Garage
1
Anzahl Etagen
2
WG-geeignet
Nein
Energie
Heizungsart
Zentralheizung
Befeuerungsart
Öl
Energieverbrauch für Warmwasser
nicht enthalten
Baujahr (laut Energieausweis)
1996
Ausgestellt
ohne
Wesentlicher Energieträger
Öl
Energieausweis-Text
Energieausweis liegt bei Besichtigung vor.
Ausstattung
Gäste-WC
wg_geeignet
Keller
Balkon
Parkoption
Stellplatz
Lage
Herbolzheim, eine charmante Stadt mit ausgezeichneter Verkehrsanbindung, bietet sowohl einen Bahnhof als auch einen direkten Autobahnanschluss. Diese optimale Lage ermöglicht nicht nur eine unkomplizierte Erreichbarkeit für Pendler, sondern auch eine...
mehr lesen
Herbolzheim, eine charmante Stadt mit ausgezeichneter Verkehrsanbindung, bietet sowohl einen Bahnhof als auch einen direkten Autobahnanschluss. Diese optimale Lage ermöglicht nicht nur eine unkomplizierte Erreichbarkeit für Pendler, sondern auch eine hervorragende Anbindung an umliegende Städte und Regionen.
Genießen Sie die Vorzüge einer Stadt, die sowohl Ruhe als auch eine lebendige Infrastruktur vereint. Herbolzheim ist der ideale Ausgangspunkt für alle, die sowohl die Natur als auch städtische Annehmlichkeiten schätzen. Lassen Sie sich von den Möglichkeiten begeistern, die diese attraktive Lage für Ihr neues Zuhause oder Ihre Investition bietet.
Herbolzheim, eine charmante Stadt mit ausgezeichneter Verkehrsanbindung, bietet sowohl einen Bahnhof als auch einen direkten Autobahnanschluss. Diese optimale Lage ermöglicht nicht nur eine unkomplizierte Erreichbarkeit für Pendler, sondern auch eine hervorragende Anbindung an umliegende Städte und Regionen.
Genießen Sie die Vorzüge einer Stadt, die sowohl Ruhe als auch eine lebendige Infrastruktur vereint. Herbolzheim ist der ideale Ausgangspunkt für alle, die sowohl die Natur als auch städtische Annehmlichkeiten schätzen. Lassen Sie sich von den Möglichkeiten begeistern, die diese attraktive Lage für Ihr neues Zuhause oder Ihre Investition bietet.
Wir beraten Sie individuell vom
Anfang bis zum Vertragsabschluss:
Ganz gleich, ob Sie verkaufen
oder kaufen, vermieten oder mieten wollen:
Wir sind immer für Sie da, um Ihre Interessen zu vertreten und Sie vorausschauend zu beraten.